A case for more dual occupancy
Dual-occupancy detached housing provides two separate residences on the same titled allotment. A main residence and an ancillary dwelling are supplied, in which the ancillary or secondary dwelling is smaller than the main residence.
Typically, up to five bedrooms and between two and three cars (on site) are permitted in a dual-occupancy detached house; with the ancillary dwelling having one or two bedrooms.
Whilst they should, in my mind, be the same everywhere, planning regulations vary amongst local councils across Australia. This lack of conformity (with very clear guidelines) is holding back the creation of this important dwelling stock.
…..
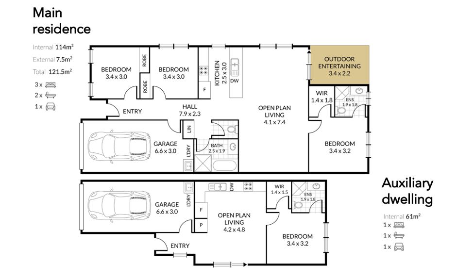
The plan and image below outlines a typical dual occupancy house.
The second plan (and photograph) is something more ambitious, falling somewhere between a house and an apartment. This housing form allows several people to live together in a suburban setting.
…..
At present one in five of Australia’s households hold two generations and some ten percent hold three generations. These figures are expected to rise to around 25% and 15%, respectively, within the next decade.
Yet the supply of housing that caters well for multi-generational and multiple tenants is in short supply.
Our work suggests this demand could be as high as 25%, yet, we estimate, less than 5% of Australia’s existing housing stock successfully caters to this market.
For investors, dual-occupancy product already shows a much higher return than most other housing types. More people are sharing accommodation and a key to getting a better rental yield is to hold property that facilitates sharing. Two sources of rental income are often better than one.
For owner-occupiers such dwellings appeal to multi-generational households. This product also appeals to first home buyers and empty nesters too.
Future housing demand
What does the future hold?
Our work suggests that demographics play a vital role in shaping future housing demand. So what does Australia’s demographic shape look like over the next decade?
Two demographic segments are set to feature, ageing Baby Boomers and Millennials.
Most ageing baby boomers look to downsize/retire in their local area. But many are not that interested in trading in their detached home for a tight mid-to-high rise apartment. A ‘middle ground’ product is really wanted.
Better still, is one which can accommodate a relative, grandchildren, visitors, a tenant and in due course, a live-in carer.
Millennials, many of whom are now buying their first home, often look for assistance to help pay the mortgage. Many now take in a tenant.
This younger demographic segment has a different mindset to their parents when it comes to property investing as they understand the pitfalls of sharing rental accommodation and often buy an investment dwelling that properly caters for two or more tenants whilst maintaining a rental premium.
In short both segments like dual-occupancy housing.
Rent and price analysis
Recent analysis by us has found that having a home that is purpose built to hold a multigenerational household or two (or more) tenants can lift the overall properties value by up to 20% and adds around a third more to an investment properties rental income.
Our work when looking at the South East Queensland market, suggests that dual-occupancy homes can achieve gross rental yields between 6% to 8% for permanent tenancies and between 15% and 20% for short-term occupancies.
Plus when looking at recent housing resales – again across South East Queensland – we found that dual-occupancy houses resold for between 12% and 15% more than other dwellings in the same location without a dedicated secondary abode.
Little wonder that the demand for dual-occupancy housing is high and rising.
Get the full picture
The Matusik Missive comes out on Tuesdays at 8am and 48 times each year.
I do like to take a bit of a break over Easter and around Christmas/New Year.
Each post holds either extra datum, fuller text, my spoken word and sometimes video content. Yikes!
But to get this extra stuff - plus search all my back issues and make comments - you will need to join the Matusik Missive Plus tribe.
This will cost you some coin – paid either weekly or on an annual basis.
You will also get free access to my quarterly market overviews and get a discount on my Ready Reckoner reports.
You can sign up for free, but you can only access my content for two weeks after posting and you cannot join any public discourse.
I hope you join the Matusik Missive Plus tribe.
If you do, me, and my bank account, say thanks!
Click on the red blob below to find out more.






